Kenmerken
- Type object:semi_detached_linked_house_one_roof
- Totale oppervlak:324m2
- Bewoonbaar oppervlak:84m2
- Slaapkamers:3
- Garage:Ja
- Tuin:Ja
Omschrijving
Charmant, modern, instapklaar en verrassend veelzijdig.
Zeg hallo tegen dit charmante jaren ’50 huis. Volledig gerenoveerd, dus helemaal van deze tijd. De witte gevel en het rode pannendak geven het een frisse, uitnodigende uitstraling, terwijl de grote ramen zorgen voor een zee van natuurlijk licht.
Perceelgrootte: 324m².
Bouwjaar: ca. 1957, recent gerenoveerd
Energielabel: aangevraagd
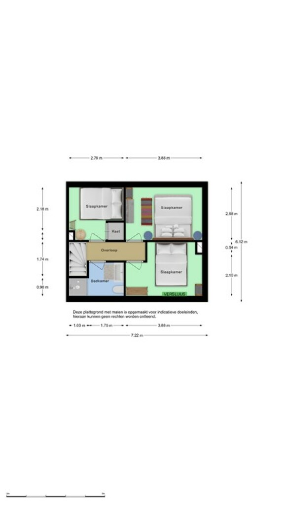
3 Slaapkamers.
Het huis springt in het oog dankzij de strak gekaleide gevel, modern fris en onderhoudsarm. Binnen wacht een warm welkom met een royale hoeveelheid daglicht, luxe houten vloeren en een doordachte afwerking. Een fijne sfeer waarin elk interieur, of je nu houdt van klassiek, modern of vintage, tot zijn recht komt.
Een bijkomend voordeel is dat deze woning mag worden gebruikt als 2e verblijf.
Zodra de voordeur openzwaait stap je binnen in de hal met de trap naar de 1e verdieping, een kelderkast, het toilet en de meterkast.
De L-vormige woonkamer is echt zo’n ruimte waar je wilt thuiskomen na een drukke dag.
De kamer bestaat uit een zitgedeelte, een eetgedeelte en hoek welke dienst kan doen als speelhoek voor de kinderen, maar ook een thuiswerkplek is een goede optie.
De mooie houten vloer straalt luxe en warmte uit, die je terug vindt in het hele huis.
Het zitgedeelte heeft openslaande tuindeuren met zicht op de tuin en een sfeervolle gashaard.
Het eetgedeelte is ruim en gezellig. Een leuk doorkijkje naar de keuken zorgt voor net dat beetje interactie tijdens het koken.
De keuken is praktisch ingedeeld, heeft meer dan voldoende bergruimte en is uitgerust met deels inbouwapparatuur en deels losse (oven en koelkast) apparatuur.
In de vrijstaande, geïsoleerde bijkeuken zijn de aansluitingen voor de wasmachine en de droger.
Ook deze verdieping straalt luxe uit door een vloer die volledig belegd is met houten vloerdelen.
De trap in de hal brengt je naar de overloop van de 1e verdieping.
Hier vind je 3 slaapkamers, waarvan 2 extra ruimtelijk zijn door de open nok.
Ook is op deze verdieping de badkamer.
De moderne badkamer is voorzien van een douche, een wastafelmeubel en een 2e toilet.
En dan de tuin!
Met speels aangebrachte hoekjes tussen het groen, een terras en volledig omheind vind je hier voldoende rust en privacy. Je krijgt hier het gevoel “in het groen te wonen”.
Dankzij de extra breedte van de tuin is er genoeg ruimte om volop van het buitenleven te genieten.
Via de poort aan de achterzijde kom je bij de garage en bij nog eens 2 eigen parkeerplaatsen. De garage is voorzien van een elektrische poort en is extra lang.
Kortom, een tuin én een buitenruimte die verrast.
