Kenmerken
- Type object:woning
- Totale oppervlak:240m2
- Bewoonbaar oppervlak:97m2
- Slaapkamers:2
- Tuin:Ja
Omschrijving
Deze fraaie tussenwoning in de Elzenstraat in Vogelwaarde wordt op dit moment gerealiseerd. In een blok van 2x5 nieuwbouwwoningen is deze fijne woning op nummer 8 nog beschikbaar. Duurzaam gebouwd, optimaal geïsoleerd en voorzien van zonnepanelen en een warmtepomp is het hier heel comfortabel wonen. Deze woning is volledig gasloos en wordt verwarmd middels vloerverwarming.
De woning beschikt over een slaapkamer en badkamer op de begane grond, je kunt hier dus volledig gelijkvloers wonen. Op de verdieping beschik je over de mogelijkheid om een extra slaapkamer te realiseren. Voor sanitair, tegelwerk en keuken zijn stelposten opgenomen in de koopsom, dit houdt in dat daar een bedrag voor gereserveerd is die al meegenomen is in de koopsom. Voordeel is dat je je tegels, sanitair en keuken zelf nog mag kiezen maar, als je binnen de stelpost blijft, hier niet apart nog voor betaald.
Deze woning is ideaal voor een een- of tweepersoons huishouden, bijvoorbeeld voor starters die waarde hechten aan comfortabel en duurzaam wonen of juist senioren die graag wat kleiner en gelijkvloers willen wonen met behoudt van een eigen tuintje.
indeling:
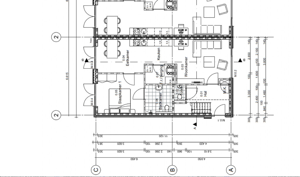
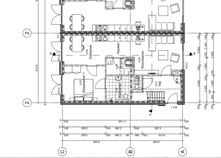
Hal met meterkast, toilet en vaste trap naar de verdieping. Via de hal betreed je de woonkamer met de zithoek aan de voorzijde van de woonkamer. De keuken is voorzien in het midden van de ruimte en deze is nog naar eigen smaak te kiezen. Hier vind je ook de deur naar de technische ruimte die tevens dient als bijkeuken, naast warmtepomp, boiler en ventilatiesysteem heb je hier de ruimte om je wasmachine te plaatsen. Achterin de woonkamer kan de eetkamertafel geplaatst worden en heb je via openslaande tuindeuren toegang tot de achtertuin. Hier bevindt zich ook de deur naar de slaapkamer met de en suite badkamer. Ook de slaapkamer is voorzen van openslaande tuindeuren. De badkamer wordt standaard uitgerust met een inloopdouche, 2e toilet en wastafel. De kosten van het standaard sanitair en tegelwerk zijn opgenomen in de koopsom, je mag hier echter zelf nog een keuze in maken bij aankoop zodat alles past bij jouw smaak en wensen.
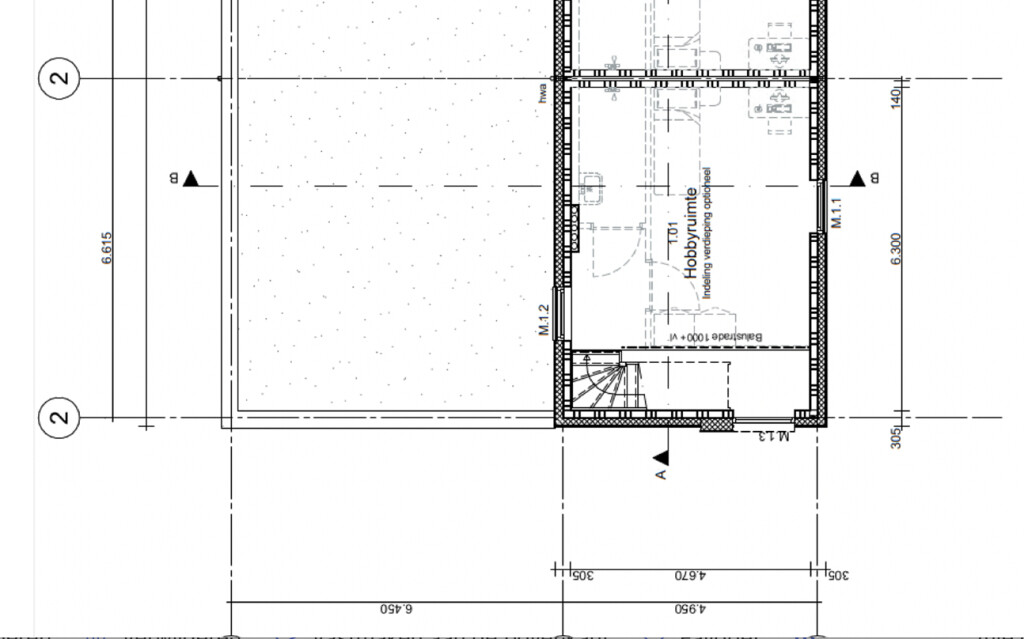
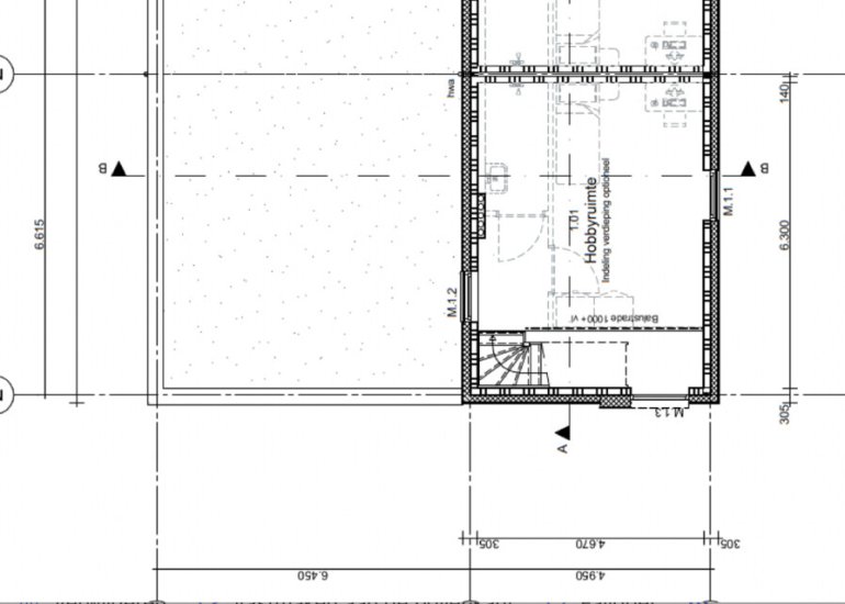
De verdieping biedt ruimte aan een tweede slaapkamer, werkkamer of hobbyruimte. Deze is naar wens in te delen en af te werken. Wil je graag ter plaatse een kijkje nemen? Dat kan! Maak je bezichtigingsafspraak en we laten je de woning graag zien.
