Kenmerken
- Type object:appartement
- Totale oppervlak:onbekend
- Bewoonbaar oppervlak:75m2
- Slaapkamers:2
- Garage:Ja
Omschrijving
Midden in het centrum van Terneuzen is het nieuwbouwappartementencomplex 'Kop van Noord' gebouwd, bedoeld voor diverse doelgroepen. Dit prachtige 3-kamer hoek appartement is recent opgeleverd en direct beschikbaar.
Los van het feit dat een nieuw appartement van binnen natuurlijk van alle gemakken is voorzien, geniet je ook van faciliteiten in en rondom het wooncomplex. Niet in de laatste plaats van een gemeenschappelijke binnenplaats, een tuin met zitruimte. Qua voorzieningen is er een afgesloten fietsenberging.
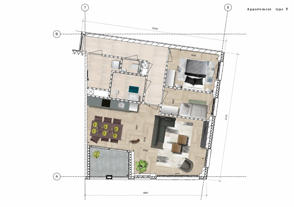
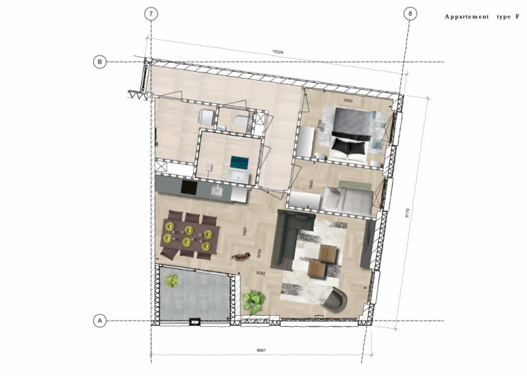
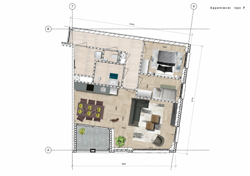
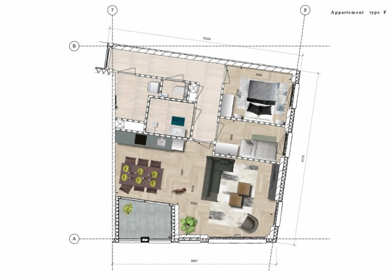
Dit appartement is één van de grotere en het laatst beschikbare appartement met een geheel eigen indeling. U heeft vanuit uw woonkamer en balkon een prachtig vrij zicht over het centrum van Terneuzen.
De woon- en eetkamer is aan de voorzijde maar liefst ca. 8,40 meter breed en geeft rechtstreeks toegang tot de loggia/ het balkon. De vloeren zijn voorzien van een pvc laminaatvloer en de wanden zijn afgewerkt met vliesbehang. Behalve de twee slaapkamers is er tevens een grote berging/technische ruimte. De complete badkamer en separate toiletruimte zijn uitgerust met een luxe inrichtingspakket en voorzien van douche inrichting, wastafelmeubel en tegelwerk.
Dit type appartement heeft 75 m² woonoppervlakte met een buitenruimte van 5 m².
De ligging van het balkon ligt op het zuiden met een prachtig zicht over de Axelse Dam en het Bellevue parkje.
Het appartement is voorzien van een eigen inpandige berging op de begane grond en een eigen parkeerplaats direct bij het gebouw gelegen.
Parkeren
Aan de noordzijde van het gebouw zijn 4 parkeerplaatsen gelegen. Dit appartement heeft een eigen parkeerplaats direct bij het gebouw, dit is uniek te noemen.
Het appartement is gelegen op een toplocatie, op loopafstand van winkels, de bibliotheek, Family restaurant en het gezellige Bellevue parkje.
Bijzonderheden:
- de badkamer en separate toilet zijn voorzien van luxe inrichtingspakket
- de vloeren zijn voorzien van een pvc laminaatvloer
- de wanden zijn afgewerkt met vliesbehang
- balkon op het zuiden met een prachtig uitzicht
- eigen parkeerplaats direct naast het gebouw gelegen
- inpandige berging op de begane grond
- energielabel A+++
- balkon op het zuiden met een prachtig uitzicht
Ziet u uzelf hier al wonen? Neem voor meer informatie contact met ons op en plan een bezichtiging in!
