Kenmerken
- Type object:appartement
- Totale oppervlak:onbekend
- Bewoonbaar oppervlak:162m2
- Slaapkamers:3
- Garage:Ja
- Tuin:Ja
Omschrijving
Sint Annastraat 10 wacht u op bij de entree van Sluis. 1 instapklaar gaaf penthouse hebben we hier nieuw beschikbaar. Grijp uw kans op uniek en stijlvol wonen in een kleinschalig gebouw (16 totaal) aan de rand van het bruisende hart van Sluis. Een 2-floor penthouse; een volledig huis met het gemak van een appartement! Met voldoende parkeer-, fiets- en bergruimte onder het gebouw.
Het penthouse ligt op één van de mooiste plekken in dit prachtige gebouw, zeer rustig op een hoek aan de achterzijde. Het penthouse is nieuw, instapklaar en voorzien alle gemakken. Het is voorzien van grote raampartijen met een prachtig weids uitzicht over de polders. Op beide verdiepingen heeft het penthouse een slaapkamer, keuken en een badkamer. Genieten kunt u op één van de twee riante terrassen van de middag- en avondzon.
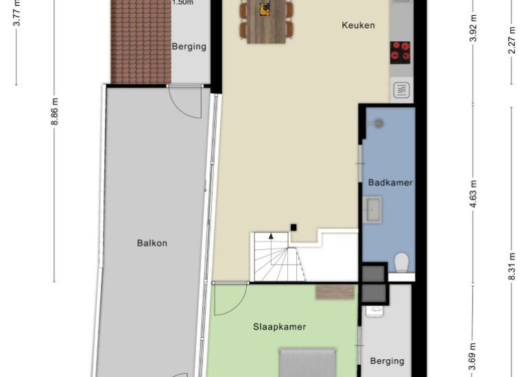
Indeling:
Begane grond penthouse:
Entree via een ruime hal met toiletruimte en trap naar de eerste verdieping. Het gehele appartement is voorzien van een eiken planken vloer met uitzondering van de natte ruimtes. Royale woonkamer met vloerverwarming en toegang tot een riant balkon. De luxe open keuken heeft een moderne uitstraling en is voorzien van een inductiekookplaat, afzuigkap, oven, magnetron, vriezer, koelkast en vaatwasmachine. In de hal is een berging voorzien van aansluiting voor witgoed.
De slaapkamer op de begane grond heeft een badkamer en-suite. De ruime badkamer is voorzien van vloerverwarming, een dubbel wastafelmeubel, ruime inloopdouche, hangtoilet en handdoekradiator.
Bij dit penthouse hoort een af te sluiten berging en een open parkeerplaats in de parkeergarage. Zowel het appartement als de parkeerplaats en berging zijn bereikbaar via de lift.
Eerste verdieping penthouse:
Slaapkamer, open ruimte die de mogelijkheid biedt tot een derde slaapkamer of een werkkamer, open keuken met een inductiekookplaat, afzuigkap, combi magnetron en koelkast, badkamer met inloopdouche, wastafelmeubel en hangtoilet.
Bergruimte met toilet, CV-installatie en aansluiting voor witgoed. Het grote terras op deze verdieping heeft daarnaast een ruime berging.
Bijzonderheden:
- Woning is recent opgeleverd
- Woonoppervlakte ca. 162 m²
- Energielabel A
- Het gebouw is voorzien van zonnepanelen voor de algemene ruimtes
- Lift is aanwezig
- Twee riante balkons (circa 35 m²) in rustige straat met middag- en avondzon
- Op loopafstand van voorzieningen zoals supermarkt, winkels en restaurants
- Kleinschalig appartementencomplex met zeer ruime openbare ruimtes
- Algemene fietsenberging mét elektriciteitsvoorzieningen
- Servicekosten ca. € 397,- per maand (aan wijzigingen onderhevig)
- Afsluitbare berging en parkeerplaats in ondergrondse parkeerkelder
- Verwarming via CV-ketel
