Kenmerken
- Type object:woning
- Totale oppervlak:97m2
- Bewoonbaar oppervlak:68m2
- Slaapkamers:2
- Tuin:Ja
Omschrijving
Welkom in deze verrassend ruime en compleet vernieuwde woning, waar modern wooncomfort en praktische indeling samenkomen. Deze instapklare woning biedt alles wat je zoekt: een stijlvolle afwerking, energiezuinige voorzieningen en een knusse tuin met achterom.
Perceelgrootte: 97 m².
Bouwjaar: ca. 1950, gerenoveerd 2024/2025
Energielabel: B
2 Slaapkamers.
Wil je een energiezuinige woning op loopafstand van alle voorzieningen? En dan ook nog eens die helemaal af is en waar je zó in kunt trekken? Dan is dit jouw kans.
Neem snel contact op voor een bezichtiging.
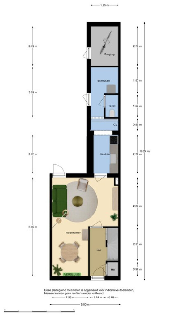
Je komt binnen in de hal met een moderne meterkast voorzien van maar liefst 13 groepen en aardlekschakelaars. Ook hangt hier de omvormer voor de zonnepanelen.
Onder de trap bevindt zich een handige trapkast voor extra bergruimte.
De lichte woonkamer is voorzien van een laminaatvloer en een tuindeur die zorgt voor een fijne verbinding met buiten. De sfeer is strak en eigentijds, mede dankzij de glad gestucte wanden en de rolluiken aan zowel de voor- als achterzijde.
De keuken is ook volledig nieuw en uitgerust met moderne inbouwapparatuur: een koelkast, compacte vaatwasser, combi-oven en een inductiekookplaat. De vinylvloer is onderhoudsvriendelijk.
Achter de keuken – in een nisje - bevindt zich de opstelplaats voor de cv-ketel.
Via een schuifdeur bereik je de bijkeuken en het – ook weer volledig nieuwe - toilet. In de bijkeuken is plek voor de wasmachine en een elektrische radiator zorgt voor extra comfort.
Ook vanuit de bijkeuken is er toegang tot de tuin.
In de tuin is een berging met elektra – ideaal voor fietsen of gereedschap.
Op de verdieping vind je twee ruime slaapkamers, beide voorzien van een dakkapel en vaste kast. De kamers zijn belegd met een laminaatvloer en worden verwarmd met losse elektrische kachels. Perfect in combinatie met de zonnepanelen.
De badkamer is eveneens vernieuwd en beschikt over een inloopdouche, wastafelmeubel én een 2e toilet. Hier is er eveneens elektrische verwarming en belangrijk is ook de aanwezige mechanische ventilatie.
Ook hier zorgt een dakkapel voor extra licht en ruimte.
De tuin is onderhoudsvriendelijk aangelegd en beschikt over een achterom. Een fijne plek om te ontspannen of buiten te eten.
De berging is bereikbaar via de tuin en voorzien van elektra.
