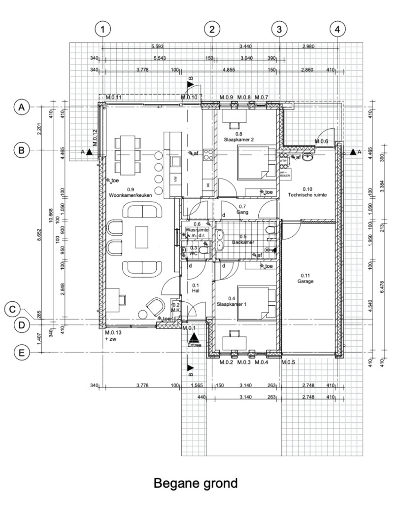
Kenmerken
- Type object:woning
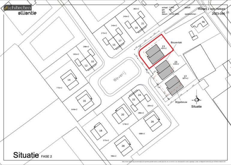
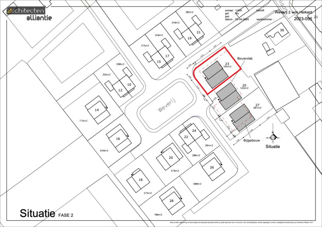
- Totale oppervlak:494m2
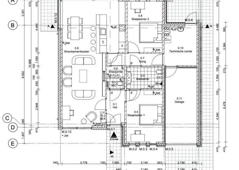
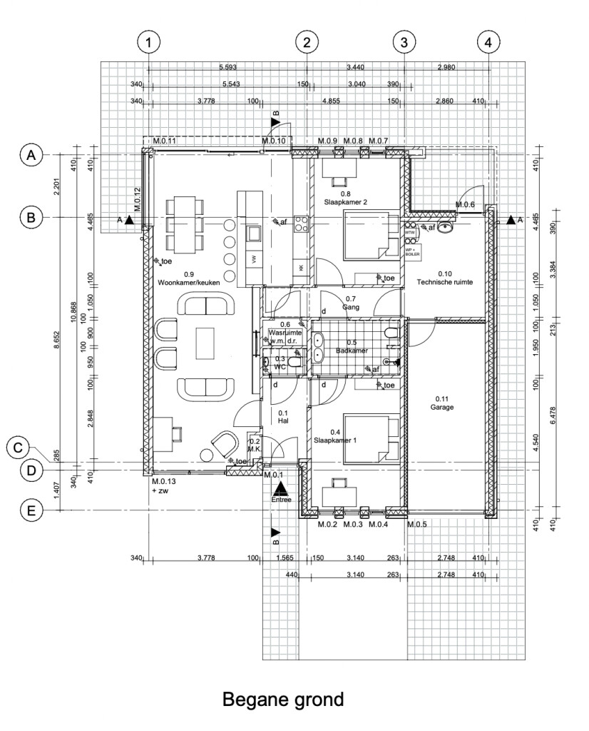
- Bewoonbaar oppervlak:108m2
- Slaapkamers:2
- Garage:Ja
- Tuin:Ja
Omschrijving
K+B Nieuwbouwdag â Zaterdag 29 november
Ontdek hoe jouw nieuwbouwplan werkelijkheid wordt.
Op zaterdag 29 november, van 11.00 tot 15.00 uur, nodigen we je van harte uit voor de K+B Nieuwbouwdag bij Morres in Hulst.
Onze adviseurs staan klaar om samen met jou de eerste stappen te zetten richting jouw nieuwbouwwoning.
Ontdek de mogelijkheden, stel je vragen, maak keuzes en geef vorm aan je nieuwbouwdroom.
De toegang is gratis.
Kom langs en laat je inspireren.
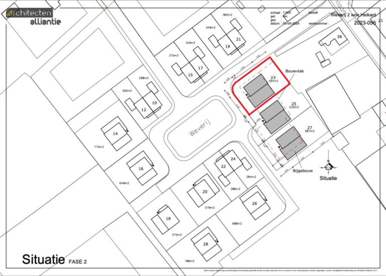
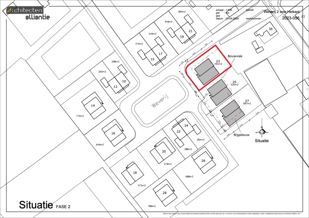
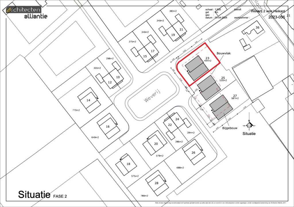
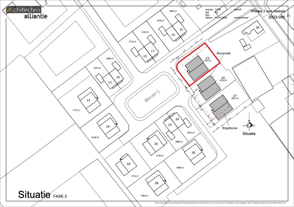
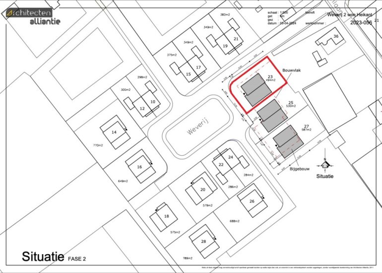
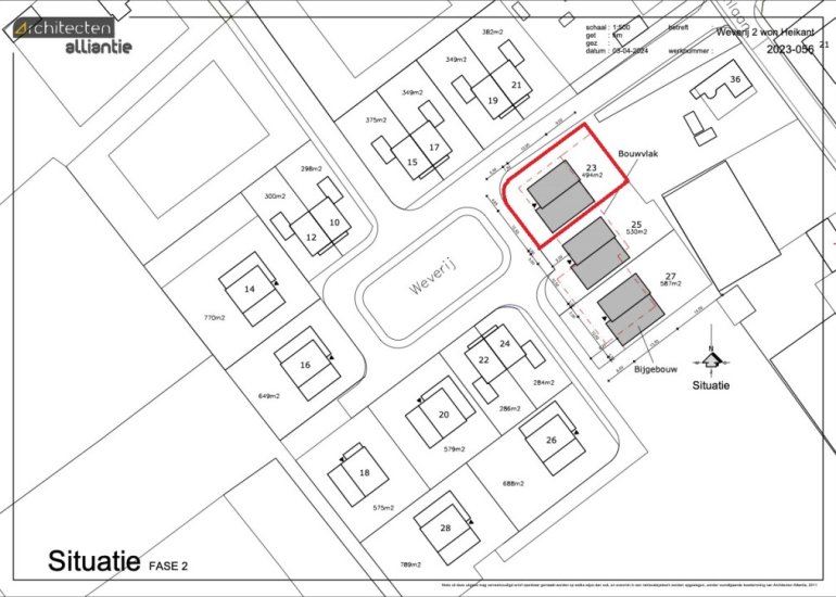
Het hofje De Weverij in Heikant wordt op korte termijn uitgebreid met drie ruime bungalows. Volledig gelijkvloers wonen volgens de laatste energienormen en isolatievereisten, duurzaam gebouwd en royaal van oppervlakte.
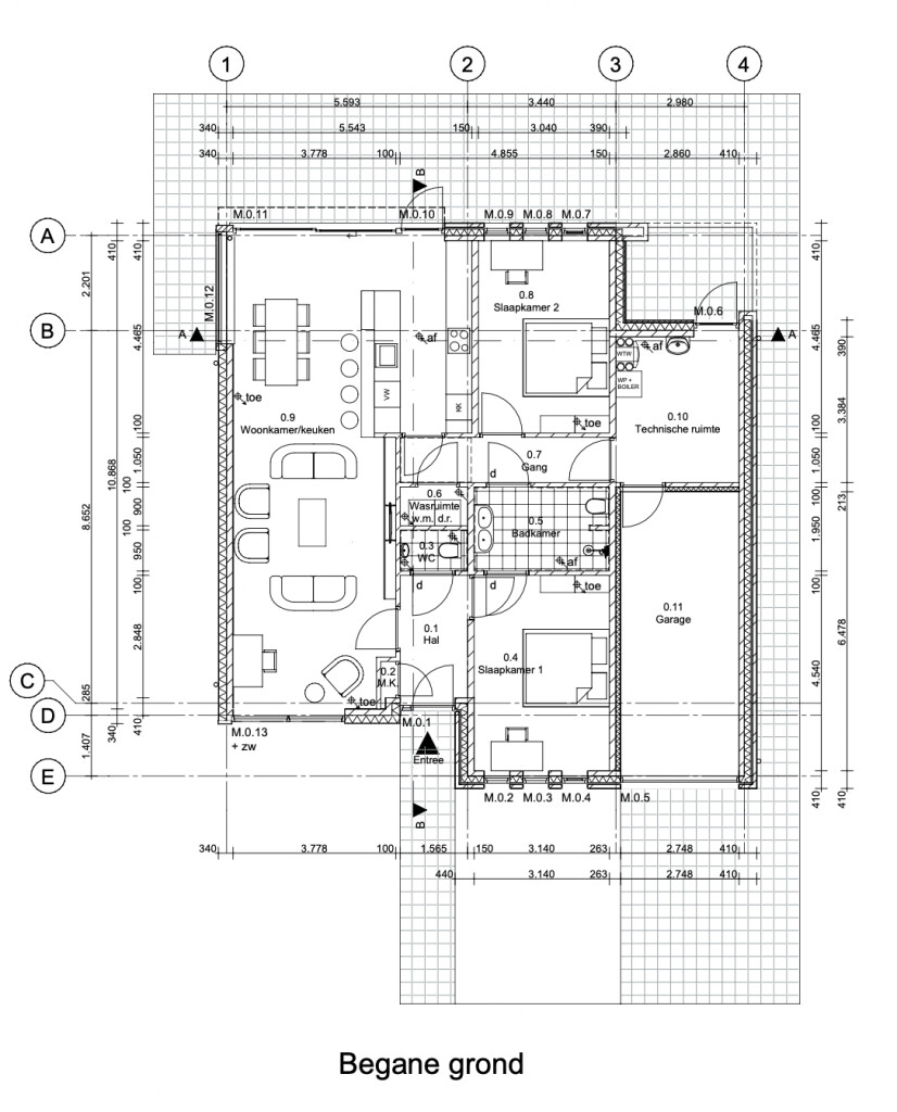
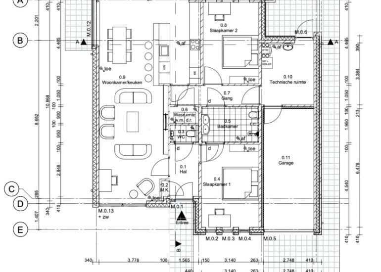
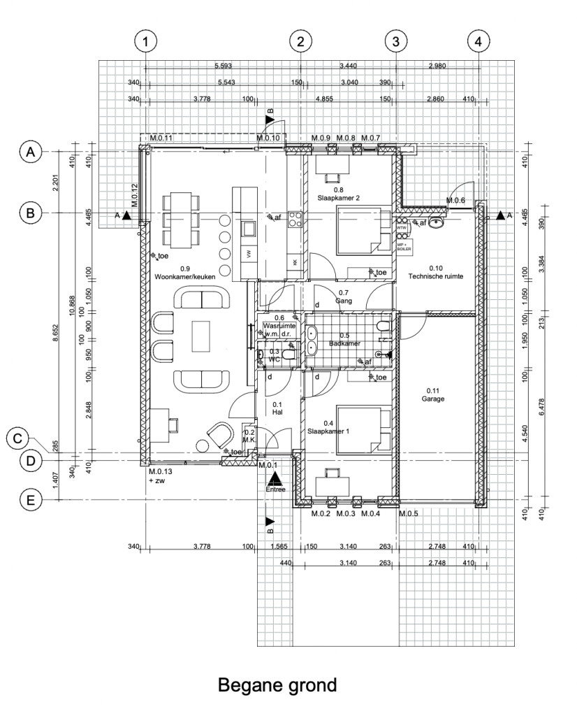
indeling:
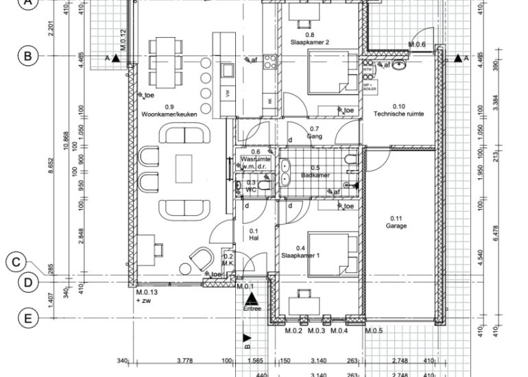
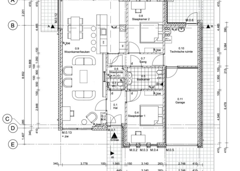
Je komt binnen via de hal met meterkast en toilet. Een deur geeft toegang tot de slaapkamer aan de voorzijde van de woning en via de andere deur betreed je de woonkamer. Met grote raampartijen aan zowel de voor- als achterzijde valt er veel daglicht binnen wat deze royale woonruimte heerlijk licht en nog ruimtelijker maakt. Aan de achterzijde is de woonkamer voorzien van een schuifpui en daarnaast een achterdeur die toegang geeft tot de achtertuin. De ruimte aan de achterzijde leent zich zich voor een royale keukenopstelling.
Vanuit de keuken heb je toegang tot de gang die vervolgens weer toegang geeft naar de wasruimte, de tweede slaapkamer en de badkamer. Ook kun je via deze gang naar de technische ruimte/berging en de inpandige garage. De badkamer bevat naast een deur naar de gang ook een rechtstreekse verbinding naar de eerste slaapkamer. De badkamer is uitgerust met een elektrisch bedienbaar dakraam.
Voor binnendeuren, wandtegels, vloertegels en sanitair zijn stelposten opgenomen in de koopsom. Er is dus nog voldoende keuze om de woning naar eigen smaak af te laten werken.
