Kenmerken
- Type object:appartement
- Totale oppervlak:onbekend
- Bewoonbaar oppervlak:87m2
- Slaapkamers:2
- Garage:Ja
- Tuin:Ja
Omschrijving
Ontdek in het charmante Cadzand-Bad dit prachtige luxe gemeubileerde appartement. Het beschikt over twee balkons en twee slaapkamers met ieder een eigen badkamer. Dit appartement bevindt zich in Duinhof Oost, op de tweede verdieping van gebouw Duinhof VII.
Het levendige centrum van Cadzand-Bad, met zijn boetiekjes, gezellige eetgelegenheden en jachthaven, ligt op wandelafstand.
Bij het appartement hoort een open parkeerplaats en afsluitbare berging in de parkeerkelder.
Cadzand biedt een prachtige omgeving met een breed scala aan recreatieve en ontspanningsmogelijkheden. Het combineert natuurlijke schoonheid met moderne voorzieningen, waardoor het een ideale bestemming is.
Uitgestrekte, schone zandstranden en de zee die mogelijkheden voor zwemmen, watersporten zoals kitesurfen, en lange strandwandelingen biedt.
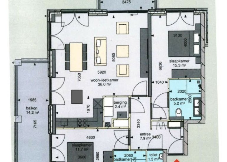
Indeling:
Via een ruime hal komt u in de lichte woonkamer met houten vloer en toegang tot twee balkons waardoor u altijd een plekje heeft om van de zon te genieten. Hier is het heerlijk relaxen met een hapje en een drankje. De open luxe keuken met tegelvloer en eiland is voorzien van inbouwapparatuur, een inductie kookplaat, combimagnetron, koelkast met vriesvakje en een vaatwasser. De berging is eenvoudig bereikbaar vanuit de hal, waardoor u snel toegang heeft tot deze praktische opbergruimte.
De twee slaapkamers, ook voorzien van een houten vloer, hebben ieder een eigen badkamer en-suite. Beide badkamers zijn uitgerust met een inloopdouche en een wastafelmeubel. In de grootste badkamer treft u ook een toilet. Een tweede (gasten)toilet is bereikbaar via de hal.
Eén slaapkamer heeft via openslaande deuren toegang tot het balkon met ochtendzon.
Bijzonderheden:
- CV-Ketel: HR Combi 2016
- Energielabel A+
- Vraagprijs is inclusief de inventaris (excl. persoonlijke items)
- Appartement is instapklaar
- Maandelijkse servicekosten € 332,19 (2025)
- Verhuur kan via het ter plaatse aanwezige Duinhof Holidays
- Bestemming is recreatief
Laat deze kans niet aan u voorbijgaan. Neem contact met ons op en ervaar zelf de charme van Cadzand-Bad.
