Kenmerken
- Type object:appartement
- Totale oppervlak:onbekend
- Bewoonbaar oppervlak:83m2
- Slaapkamers:2
- Garage:Ja
- Tuin:Ja
Omschrijving
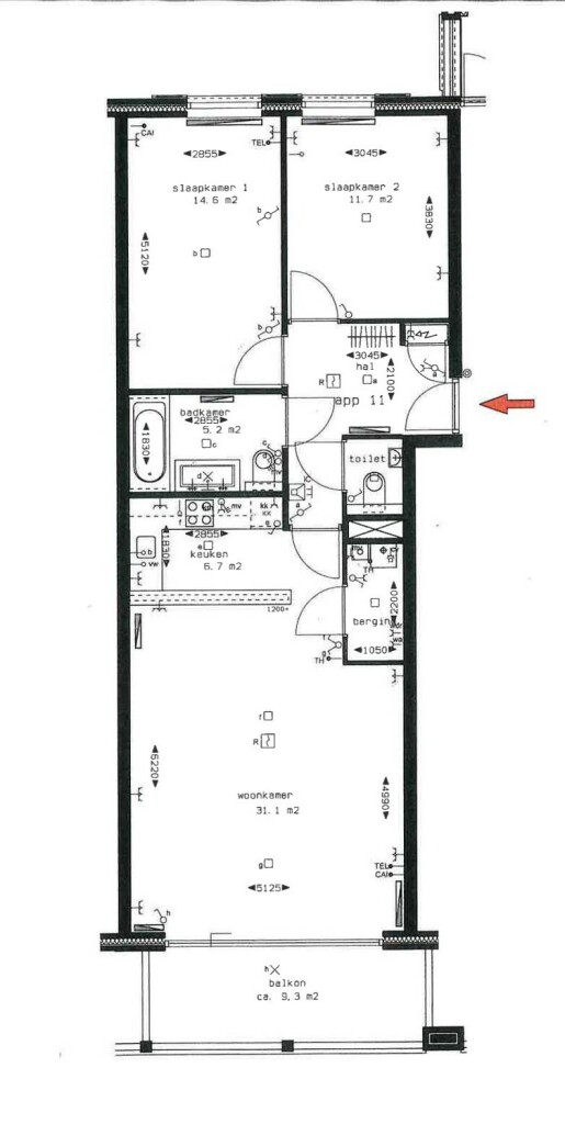
Gelegen in Cadzand-Bad, op loopafstand van het prachtige strand en de levendige zee, presenteren wij dit comfortabele en volledig ingerichte appartement met twee slaapkamers. Het bevindt zich op de eerste verdieping van gebouw VI in Duinhof Zuid en beschikt over een heerlijk ruim balkon op het zuiden, compleet met een afsluitbare berging en een open parkeerplaats in de parkeergarage.
Bij binnenkomst wordt u begroet door de ruime en lichte woonkamer, naadloos verbonden met een luxe open keuken uitgerust met inbouwapparatuur zoals een inductiekookplaat, koelkast met vriesvak en combi-magnetron. Hier kunt u naar hartenlust koken en genieten van gezellige diners met familie of vrienden. De handige berging bevindt zich vlakbij de keuken.
Het zonnige balkon op het zuiden nodig uit tot ontspanning en biedt een prachtig uitzicht op de omgeving, perfect voor rustige momenten en gezellig samenzijn.
Via de hal met toiletruimte zijn de twee slaapkamers en badkamer bereikbaar.
Beide comfortabele slaapkamers zijn voorzien van een laminaatvloer en bieden voldoende ruimte voor eventuele gasten. De badkamer met inloopdouche en dubbele wastafelmeubel met spiegelkast biedt luxe en comfort in één.
Mis deze unieke kans om niet te genieten van al het moois dat Cadzand-Bad te bieden heeft. Neem vandaag nog contact op met ons op voor meer informatie en een bezichtiging. Van harte welkom in uw nieuwe droomappartement!
Bijzonderheden:
- Energielabel A+
- De vraagprijs is inclusief de inventaris
- Oppervlakte circa 83 m²
- Servicekosten ca. € 429,- per maand
- Verhuur via het ter plaatse aanwezige verhuurkantoor Duinhof Holidays
- Afsluitbare berging en open parkeerplaats in ondergrondse parkeerkelder
- Appartement is, met uitzondering van de slaapkamers, voorzien is van een tegelvloer
- Zonnig zuidgeoriënteerd balkon
- Grote algemene fietsenberging in parkeergarage
