Kenmerken
- Type object:woning
- Totale oppervlak:987m2
- Bewoonbaar oppervlak:202m2
- Slaapkamers:4
- Garage:Ja
- Tuin:Ja
Omschrijving
Deze vrijstaande, onder architectuur gebouwde woning belichaamt de essentie van modern en ruimtelijk wonen. Ontworpen door de gerenommeerde architect Rigobert Antheunis, zal deze riante villa de liefhebber van design en exclusiviteit zeker aanspreken.
Perceelgrootte: 987m². 
Bouwjaar: ca. 1997
Energielabel: A
3 Slaapkamers, 4 mogelijk 
Gebouwd met het oog op maximale privacy voor de bewoners, ligt deze woning in een rustige wijk die enkel bereikbaar is voor bestemmingsverkeer. De moderne vormgeving en de zorgvuldig gekozen hoogwaardige materialen, gecombineerd met een doordacht spel van licht en belijning, zorgen voor een uitdagend contrast met de rest van de omgeving.
Laat je verrassen tijdens een bezichtiging, en je zult net zo onder de indruk zijn als wij!
Deze woning is niet zomaar een huis, het is een levensstijl.
Een bijzondere plek om te wonen, waar zowel de binnen- als de buitenruimtes strak en rustig zijn gehouden waardoor de bijzondere architectuur met het thema “Licht – Ruimte – Structuur” volledig tot zijn recht komt. 
De hoogwaardige materialen en de technische snufjes maken het gevoel van luxe compleet. Kortom, een juweel voor wie op zoek is naar iets buitengewoons.
Aardenburg ligt op 25 km van Brugge, 40 km van Gent en 15 km van het Zwin/ Cadzand-Bad.
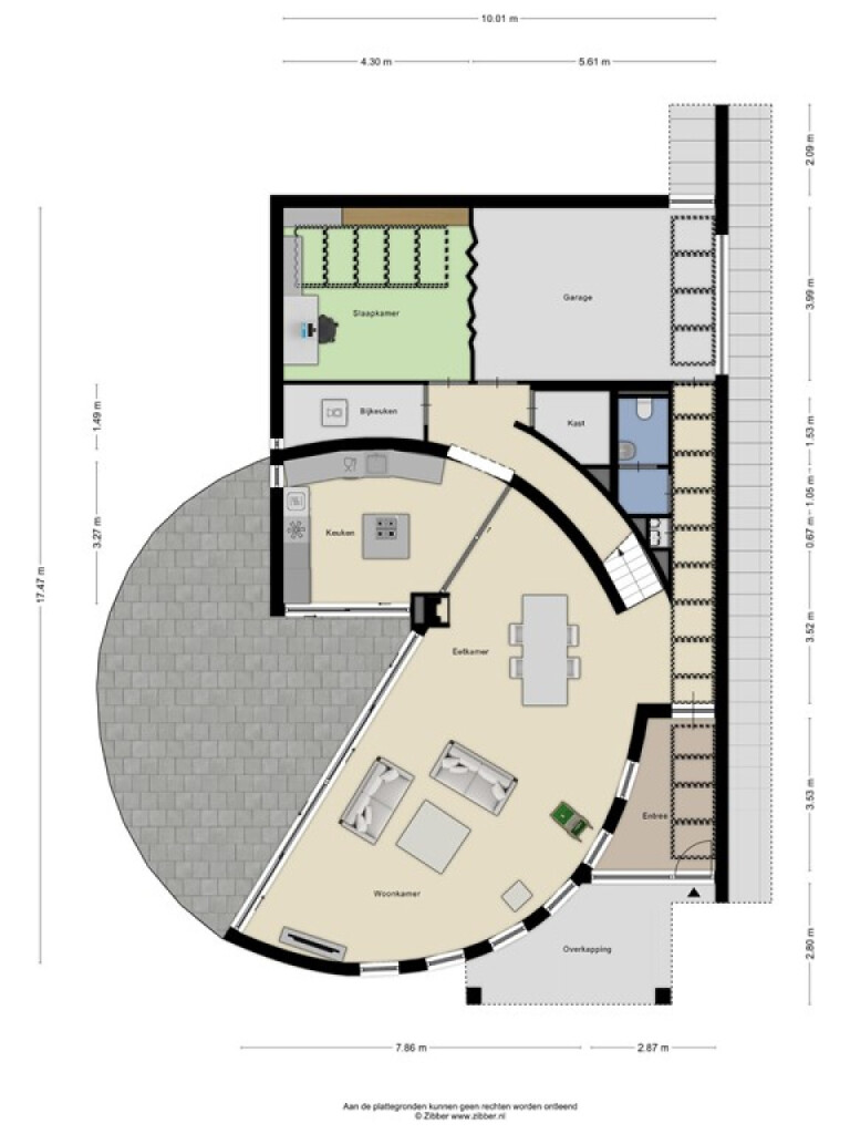
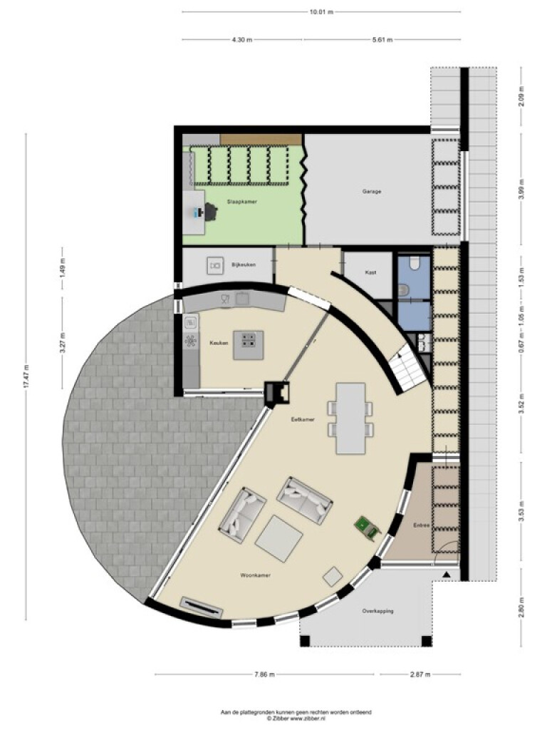
Via een brug over de vijverpartij, komen we binnen in de lange hal met vide. Een lichtstraat gecombineerd met Solar Tubes zorgt voor een aangename en royale lichtinval.
In de verbindende gang vinden we het toilet met een eigen voorportaal. 
Ook is er de meterkast en de fraaie trap naar de verdieping.
Het hart van de woning bevindt zich in de ronde structuur die de woonkamer en de keuken herbergt.
De woonkamer met natuurstenen vloer en open haard biedt via de brede schuifpui een hemelsbreed uitzicht naar de tuin.
De luxe keuken is voorzien van alle apparatuur, een kookeiland en met als extra apparatuur ook nog een stoomoven en een diepvries. De apparatuur is in 2020 deels vernieuwd.
De ronding van de woonkamer met de keuken loopt door naar het terras, wat bereikbaar is via de diverse schuifpuien van zowel de woonkamer als de keuken. 
Vanuit de keuken komen we in een halletje met daarin een voorraadkast en toegang tot de technische ruimte. In deze ruimte bevindt zich de cv-ketel, het WTW systeem, het centraal stofzuigsysteem en tevens is er de aansluiting voor het witgoed.
Vervolgens komen we in een multifunctionele ruimte met een verrassende ruimtelijkheid. Deze ruimte kan prima fungeren als slaapkamer, werkkamer of praktijkruimte. Een prima optie voor wie wil werken aan huis. De lichtstraat met screens zorgt ook hier voor aangenaam veel lichtinval.
In de multifunctionele ruimte is er een hoge kast met schuifdeuren met hanggedeelten en legplanken. De multifunctionele ruimte is voorzien van een Daikin met mogelijkheid tot koelen en verwarmen (geplaatst in 2025) welke op afstand is te bedienen via app. Op deze manier is de mogelijkheid van “gelijkvloers wonen” te creëren.
De brede garage is voorzien van een elektrische poort en heeft een afwerking die aansluit bij het niveau van deze villa. 
De garage heeft eveneens een spannend lichtspel met de gang en de entree van de woning. Dit moet je ervaren om er een beeld van te kunnen vormen.
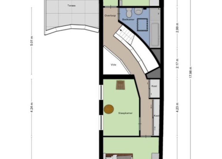
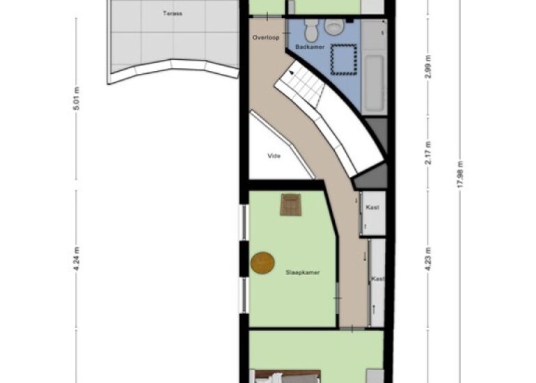
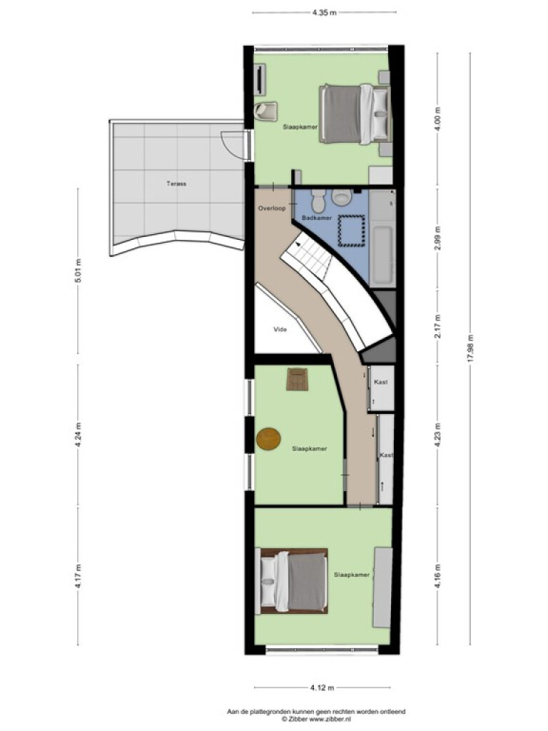
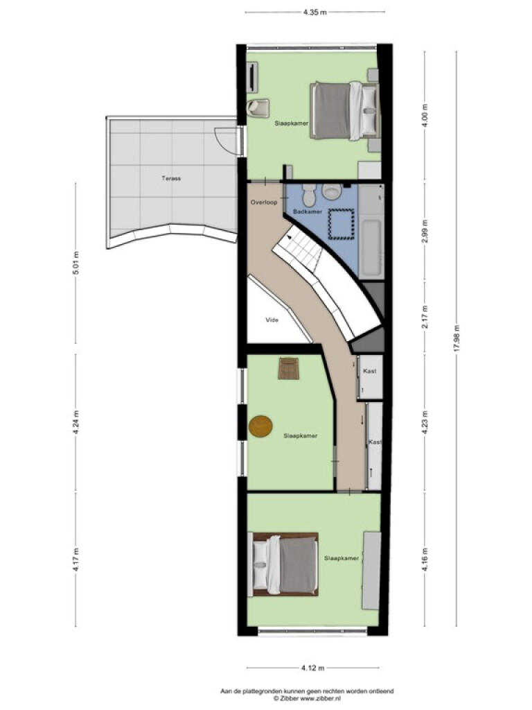
Via de prettig begaanbare halfronde trap komen we op de overloop met ronde vide. 
Ook hier komen licht, ruimte en structuur weer op een verrassende manier samen.
Deze verdieping is volledig voorzien van parketvloeren en biedt ruimte aan 3 slaapkamers en een badkamer en zorgt voor een harmonieuze balans tussen de woon- en de slaapvertrekken.
De 1e slaapkamer beschikt over een eigen dakterras met uitzicht op de tuin.
De 2e slaapkamer is wat kleiner, maar heeft een prachtig zicht op de tuin.
De centrale gang bij deze kamer heeft een royale kastenwand voor extra bergruimte.
De 3e slaapkamer is de Masterbedroom en kijkt uit op het natuurlijk groen aan de voorzijde van de woning.
De badkamer is uitgerust met een douchecabine, een ligbad, een wastafel en een 2e toilet. Een infrarood spiegel zorgt voor een energiezuinige verwarming, maar ook voor een helder spiegelbeeld na een douchepartij. 
Een dakraam maakt het geheel compleet met een mooie natuurlijke lichtinval.
De op het Zuid-Westen gelegen tuin is niet zomaar een tuin, maar een ware plek om te leven en te genieten. Ook in de tuin zijn de vormen en structuur van de architectuur van het huis doorgetrokken. 
In combinatie met de zorgvuldig gekozen materialen en de beplanting zorgt dit voor een serene buitenruimte, waarbij de privacy volledig gewaarborgd is.
De platanen en het bankirai terras geven een ruimtelijke sfeer die past bij de architectuur van het geheel. 
De voorzijde van het huis is omgeven door een vijverpartij met diverse waterplanten en vissen. Een loopbrug met houten vlonders geeft toegang tot de voordeur.

 
					













































































