Kenmerken
- Type object:woning
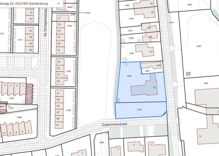
- Totale oppervlak:2088m2
- Bewoonbaar oppervlak:221m2
- Slaapkamers:4
- Garage:Ja
- Tuin:Ja
Omschrijving
Royale woning met dubbele garage en droomtuin.
Welkom bij deze bijzondere woning waar ruimte, comfort en functionaliteit moeiteloos samenkomen. Of je nu droomt van een heerlijk familiehuis, een praktijk aan huis of zelfs een Bed & Breakfast – hier kan het allemaal. Dankzij de royale indeling, meerdere slaapkamers, twee badkamers en een prachtige tuin is dit een huis dat echt alles biedt.
Perceelgrootte: 2.088 m²
Bouwjaar: ca. 1977
Energielabel: C
4 Slaapkamers.
Dit huis combineert comfortabel wonen, praktische indeling en luxe details op een manier die zelden voorkomt. Of je nu houdt van gezellig samenzijn, rust en natuur, of juist ruimte zoekt voor werk en hobby – hier vind je het allemaal.
Kom zelf de sfeer proeven en ontdek de eindeloze mogelijkheden die dit huis te bieden heeft. Maak snel een afspraak voor een bezichtiging – deze kans wil je niet missen!
Bij binnenkomst valt direct de ruime hal op, met garderobehoek, meterkast en een modern, ruim toilet.
Vanuit hier stap je de sfeervolle woonkamer binnen – een heerlijke plek om tot rust te komen. De houtkachel zorgt voor een warme ambiance, terwijl de grote schuifpui en airconditioning zorgen voor comfort in elk seizoen. Vanuit de woonkamer geniet je bovendien van een prachtig vrij uitzicht over de groene omgeving.
Aansluitend bevindt zich de ruime eetkamer, ideaal voor lange tafelmomenten met familie of vrienden.
De nette, goed uitgeruste open keuken is voorzien van diverse inbouwapparatuur en een inductiekookplaat, perfect voor de kookliefhebber.
Een lichte thuiswerkplek met schuifpui en airco maakt het plaatje compleet – een inspirerende werkruimte met volop daglicht en direct toegang tot de tuin.
De leefruimtes zijn allemaal met elkaar verbonden tot een open geheel en voorzien van een stijlvolle leistenen vloer, die zorgt voor een robuuste, tijdloze uitstraling.
De woning beschikt over maar liefst vier slaapkamers, verdeeld over verschillende delen van het huis – elk met hun eigen sfeer en mogelijkheden.
De eerste slaapkamer, momenteel in gebruik als kantoor, heeft vaste kasten en is ideaal als werk- of logeerkamer.
De eerste badkamer is uitgerust met een moderne regendouche, tweede toilet en een stijlvol wastafelmeubel.
De tweede slaapkamer biedt eveneens voldoende ruimte en licht.
De derde, royale slaapkamer beschikt over vaste kasten, airco én directe toegang tot de privé-sauna – de ultieme plek om te ontspannen.
De tweede badkamer is een luxe wellnessruimte met hoekbad, douche, wastafelmeubel en een derde toilet.
De bijkeuken biedt extra gemak met aansluitingen voor wasmachine en droger, plus een praktische provisiekast.
In de zij-aanbouw bevindt zich een aparte hal met een extra ingang en toegang tot het toilet in de hal– ideaal voor gasten, praktijk aan huis of B&B-gasten.
Hier vind je ook de vierde, ruime slaapkamer met elektrische verwarming.
Dankzij deze slimme indeling zijn de ruimtes uitstekend geschikt voor mantelzorg, een kantoor aan huis of het realiseren van een Bed & Breakfast met eigen ingang en voorzieningen.
De inpandige dubbele garage is voorzien van twee deuren, waarvan één elektrisch, en beschikt over een praktische werkhoek.
In de garage bevinden zich ook de technische installaties, waaronder de heteluchtverwarming en gasboiler.
Vanuit de garage is er toegang tot de zolder – deze strekt zich uit over de gehele woning (breedte circa 2 meter) en biedt volop bergruimte.
De tuin is een waar paradijs voor liefhebbers van rust en groen.
Er zijn meerdere terrassen, een prieel, een overdekt terras en een vijverpartij die samen zorgen voor een sfeervol geheel.
Daarnaast is er een moestuin en een aanhangerplaats. Vanuit de achtertuin heb je een prachtig uitzicht op een parkje met volwassen bomen – een schilderachtig decor dat elke dag anders kleurt.
De zijtuin biedt nog een extra terras met zonnescherm en twee kleine vijvers, ideaal voor een zomerse middag in de schaduw.
De tuin is een ware oase: rijk aan groen wat zorgt voor een natuurlijke, rustgevende ambiance. Hier geniet je volop van het buitenleven — van ontspannen zomermiddagen tot sfeervolle avonden, waar elke dag aanvoelt als vakantie.
Voor de garage ligt een ruime oprit met plaats voor meerdere auto’s.
